
New Haven Series
Intermediate Priced Homes · HUD Manufactured Homes

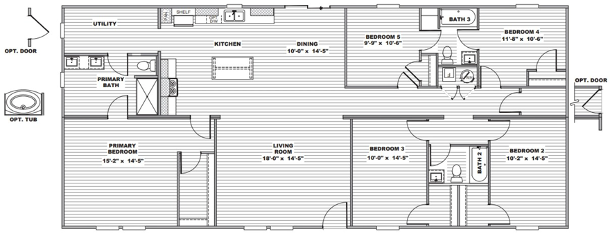
New Haven Series Floor Plans
Standard Features
EXTERIOR FEATURES:
- OSB Wrap with House Wrap
- Cement Board Fascia
- Decorative Kwikset Black Door Handle with Deadbolt
- 36”x 80” Residential In-Swing Type Exterior Doors
- 8’ Sidewalls with Stippled Interior Ceilings
FLOORS:
- Shaw Upgraded Linoleum Throughout
- 19/32” OSB Tongue-in-Groove Decking
- 16” On Center 2”x 6” Floor Joists
WINDOWS AND DOORS:
- 36”x 80” Residential 6-Panel In-Swing Front Door
- Sliding Glass Door on Doublewides
- Lux Argon Gas Low-E Thermo-Pane Windows
- Full Triple Metal Hinges on Interior Doors
- 30” Raised Two-Panel Interior Doors
ROOF/FRAME:
- Architectural Shingles
- Fully Vented Soffit & Ridge Vent
- Fully Recessed Solid I-Beam Frame
- Pier Saver Joists under Exterior Openings
PLUMBING:
- Rheem Dual-Element 40 Gallon Water Heater
- Water Shut-Offs at Plumbing Fixtures
- Whole House Water Shut-Off
- Exterior Water Faucet on Rear
ENERGY EFFICIENCY FEATURES:
- Energy Star Rated
- Ecobee Smart Thermostat
- R22-13-38 Upgrade Insulation
- Fully Sealed Ductwork
- LED Can Lighting Throughout
- Carrier SmartComfort Furnace
INTERIOR FEATURES:
- DuraCraft Cabinetry Throughout
- Shaker Style DuraCraft Cabinet Doors
- Fully Lined Interior Cabinets Throughout
- Black Accent Cabinet Knobs Throughout
- Accent Wall Panel behind Range
- 2” Onyx Upgrade Trim Throughout
- Double Louvered-Door Mechanical Room
- Spacious Secondary Bedroom Sizes
- Switched Lighting in Walk-In Closets
KITCHEN:
- Ample Cabinetry and Storage Solutions
- Kitchen Island with Dual-Sided Seating
- 42” DuraCraft Overhead Cabinets
- Stainless Steel Appliances Standard
- Samsung Smooth-Top Range & Dishwasher
- Samsung 18 Cu Ft. Top-Bottom Refrigerator
- Double Bowl 8” Deep Stainless Steel Sink
- Gooseneck Pfister Kitchen Faucet with Pull-Down
- Drawer Bank with Pot and Pan Drawers
- Pantry Cabinetry Bank next to Refrigerator
BATHS:
- Double Lavs in Primary on Double-sections
- Utility Room Bypass Door on Double-sections
- Oversized 2-Drawer Bank
- Furniture Style Vanities






